中古一戸建て 大阪市生野区巽東4丁目
所在地
大阪市生野区巽東4丁目
4,480万円
36.01坪
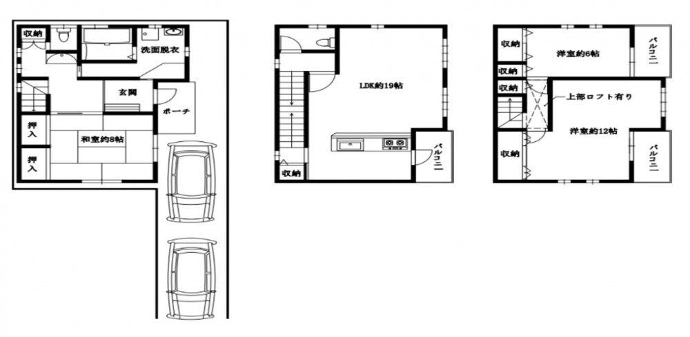
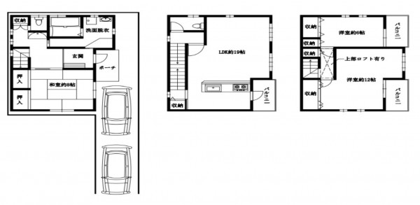
3LDK
☆木造3階建て3LDK
☆広い駐車スペース
(カーポート付き!)
☆窓やベランダ多数、日差し良好
【周辺環境】
◆巽東小学校まで徒歩3分(約180m)
◆新生野中学校まで徒歩7分(約560m)
◆セブンイレブン大阪巽東4丁目店まで徒歩1分(約70m)
◆石窯パン工房ベルフラン巽東店まで徒歩4分(約280m)
◆巽東緑地公園まで徒歩6分(約420m)
◆古本市場生野店まで徒歩6分(約440m)
◆キリン堂たつみ店まで徒歩6分(約470m)
◆食品館アプロたつみ店まで徒歩7分(約540m)
◆ライフ巽店まで徒歩8分(約580m)
◆ジャパン生野店まで徒歩8分(約600m)
物件概要
- 交通
-
大阪メトロ千日前線 北巽駅 まで 徒歩8分
- 接道状況
- 土地面積
- 106.13㎡ (32.10坪)
- 建物面積
- 119.07㎡ (36.01坪)
- 築年数
-
2006年
(平成18)
8月
築19年 - 建ぺい率
- 60%
- 容積率
- 200%
- 土地権利
- 所有権
- 構造および階数
- 木造 地上3階建
- 小学校区
- 巽東 ( 180m )
- 中学校区
- 新生野 ( 560m )
- 私道負担
- 地目
- 宅地
- 現況
- 居住中
- 引渡時期
- 相談
- 駐車場
- 上水道
- 公共
- 下水道
- 公共
- ガス
- 都市ガス
- 都市計画
- 市街化区域
- 用途地域
- 準工業
- 設備・条件
- システムキッチン、シャンプードレッサー、洗浄便座、ロフト、モニタ付インターホン、ペット可、1BOX駐車可、トイレ2箇所
- 備考
- 取引態様
- 仲介

