中古一戸建て 大阪市生野区生野西4丁目
所在地
大阪市生野区生野西4丁目
5,980万円
33.37坪
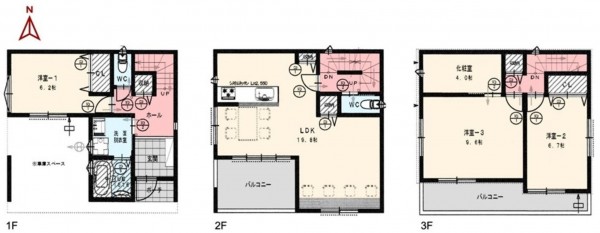
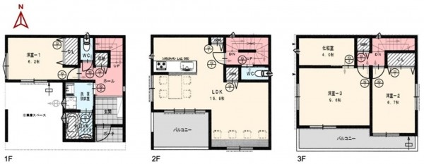
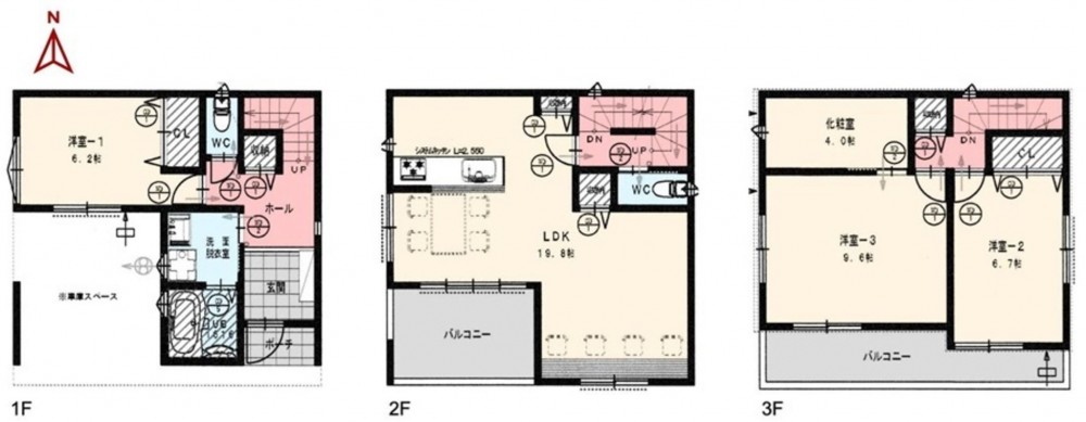
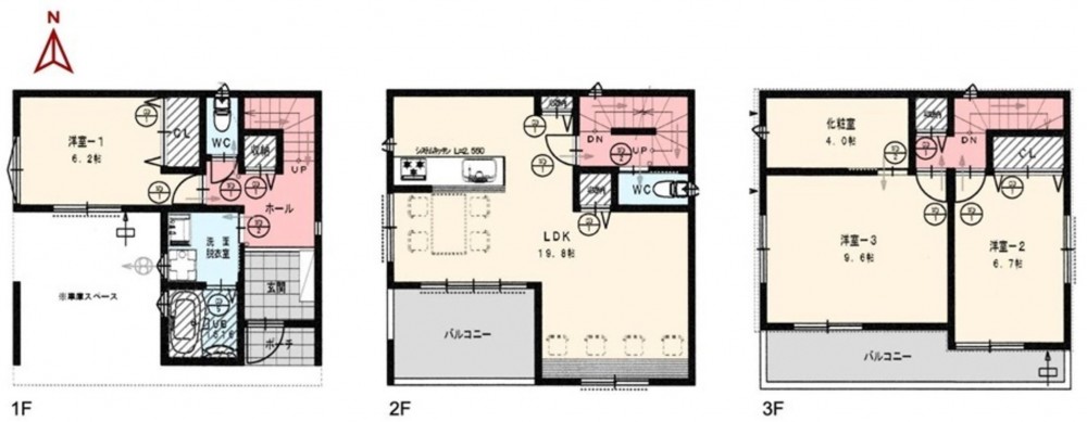
3LDK
〇2019年築
〇角地
〇エアコン4台付
〇室内設備充実
〇南向き
〇人気のカウンターキッチン
〇駅徒歩5分
〇土地約27坪
〇周辺環境充実生活至便
・花谷書店まで徒歩2分(約120m)
・ファミリーマート寺田町東店まで徒歩3分(約210m)
・生野本通商店街まで徒歩3分(約230m)
・セブンイレブン大阪生野西1丁目店まで徒歩6分(約470m)
・生野未来学園まで徒歩6分(約430m)
・ライフ寺田町駅前店まで徒歩7分(約560m)
・デイリーカナートイズミヤ国分町店まで徒歩10分(約780m)
・ココカラファイン生野マルゼン薬店まで徒歩12分(約910m)
・万代田島店まで徒歩12分(約930m)
・生野区役所まで徒歩16分(約1270m)
物件概要
- 交通
-
JR大阪環状線 寺田町駅 まで 徒歩5分
- 接道状況
-
北東側 私道4m
西側 私道4m - 土地面積
- 公簿 89.42㎡ (27.04坪)
- 建物面積
- 110.33㎡ (33.37坪)
- 築年数
-
2019年
(平成31)
1月
築7年 - 建ぺい率
- 80%
- 容積率
- 300%
- 土地権利
- 所有権
- 構造および階数
- 木造 地上3階建
- 小学校区
- 生野未来学園(前期課程)
- 中学校区
- 生野未来学園(後期課程)
- 私道負担
- 有 18.33 ㎡
- 地目
- 宅地
- 現況
- 空
- 引渡時期
- 即時
- 駐車場
- 有
- 上水道
- 下水道
- ガス
- 都市計画
- 市街化区域
- 用途地域
- 1種住居
- 設備・条件
- システムキッチン、カウンターキッチン、食器洗浄乾燥機、洗浄便座、追い焚き、モニタ付インターホン、ペット可、1BOX駐車可、トイレ2箇所、角部屋
- 備考
-
〇2019年築
〇角地
〇エアコン4台付
〇室内設備充実
〇南向き
〇人気のカウンターキッチン
〇駅徒歩5分
〇土地約27坪
〇周辺環境充実生活至便 - 取引態様
- 仲介

