中古一戸建て 大阪市生野区中川2丁目
所在地
大阪市生野区中川2丁目
2,380万円
38.83坪
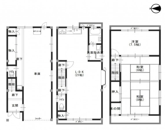
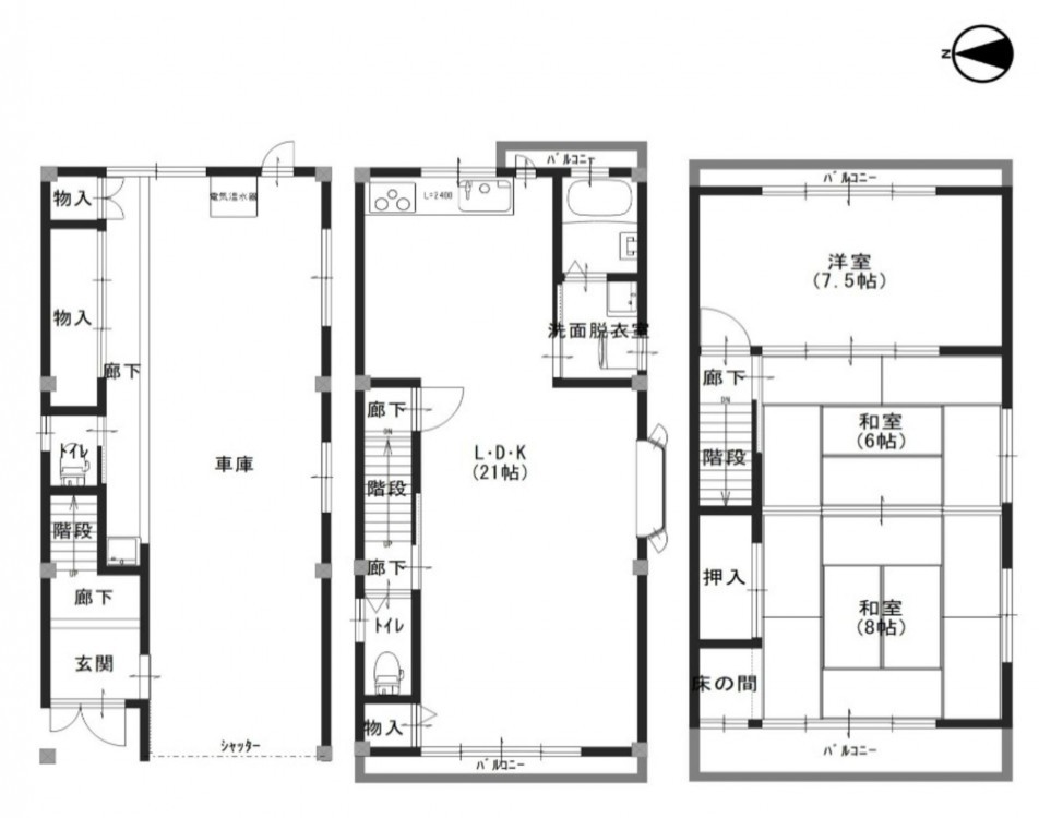
3LDK
☆鉄骨造3階建て3LDK
☆21帖の広々としたLDK
☆駐車スペース一台分あり
【周辺環境】
◆大池小学校まで徒歩5分(約330m)
◆大池中学校まで徒歩9分(約680m)
◆スーパー玉出 今里店まで徒歩4分(約250m)
◆アカカベ中川店まで徒歩4分(約270m)
◆鮮魚市場奥村まで徒歩4分(約300m)
◆ファミリーマート新今里3丁目店まで徒歩4分(約320m)
◆ビス千代まで徒歩5分(約370m)
◆薬のヒグチ桃谷店まで徒歩5分(約370m)
◆コリアタウンまで徒歩5分(約370m)
◆セブンイレブン大阪桃谷5丁目店まで徒歩6分(約450m)
物件概要
- 交通
-
近鉄奈良線 まで 徒歩12分
- 接道状況
- 私道4m
- 土地面積
- 59.28㎡ (17.93坪)
- 建物面積
- 128.38㎡ (38.83坪)
- 築年数
-
1985年
(昭和60)
9月
築40年 - 建ぺい率
- 80%
- 容積率
- 300%
- 土地権利
- 所有権
- 構造および階数
- 鉄骨造 地上3階建
- 小学校区
- 大池 ( 330m )
- 中学校区
- 大池 ( 680m )
- 私道負担
- 無
- 地目
- 宅地
- 現況
- 空
- 引渡時期
- 即時
- 駐車場
- 上水道
- 公共
- 下水道
- 公共
- ガス
- 都市ガス
- 都市計画
- 市街化区域
- 用途地域
- 1種住居
- 設備・条件
- シャンプードレッサー、洗浄便座、モニタ付インターホン、ペット可、1BOX駐車可、トイレ2箇所
- 備考
- 取引態様
- 仲介

