中古一戸建て 大阪市城東区東中浜6丁目
所在地
大阪市城東区東中浜6丁目
2,480万円
23.49坪
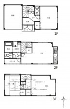
3LDK
☆鉄骨造3階建て3LDK
☆北西角地で通風・日当たり良好
☆小学校まで徒歩圏内で登下校も安心
【周辺環境】
◆東中浜小学校まで徒歩4分(約310m)
◆城東中学校まで徒歩10分(約750m)
◆ファミリーマート東中浜六丁目店まで徒歩2分(約110m)
◆生鮮スーパー たこ一 緑橋店まで徒歩3分(約240m)
◆スギ薬局東中浜店まで徒歩5分(約350m)
◆おおさかパルコープ東中浜店まで徒歩6分(約430m)
◆コーナンPRO城東東中浜店まで徒歩7分(約510m)
◆フレンドマート深江橋店まで徒歩7分(約510m)
◆セブンイレブン大阪東中浜8丁目店まで徒歩7分(約530m)
◆ファッションセンターしまむら東中浜店まで徒歩8分(約600m)
物件概要
- 交通
-
大阪メトロ中央線 緑橋駅 まで 徒歩8分
- 接道状況
-
北側 公道 間口約9.3m
西側 私道 間口約3.7m - 土地面積
- 公簿 40.04㎡ (12.11坪)
- 建物面積
- 77.67㎡ (23.49坪)
- 築年数
-
1997年
(平成9)
2月
築29年 - 建ぺい率
- 80%
- 容積率
- 200%
- 土地権利
- 所有権
- 構造および階数
- 鉄骨造 地上3階建
- 小学校区
- 東中浜 ( 310m )
- 中学校区
- 城東 ( 750m )
- 私道負担
- 無
- 地目
- 宅地
- 現況
- 空
- 引渡時期
- 即時
- 駐車場
- 有
- 上水道
- 公共
- 下水道
- 公共
- ガス
- 都市ガス
- 都市計画
- 市街化区域
- 用途地域
- 1種住居
- 設備・条件
- システムキッチン、シャンプードレッサー、洗浄便座、グルニエ(屋根裏部屋)、ペット可、1BOX駐車可
- 備考
- 取引態様
- 仲介

