マンション 日商岩井京橋ハイツ
所在地
大阪市城東区中央1丁目
2,100万円
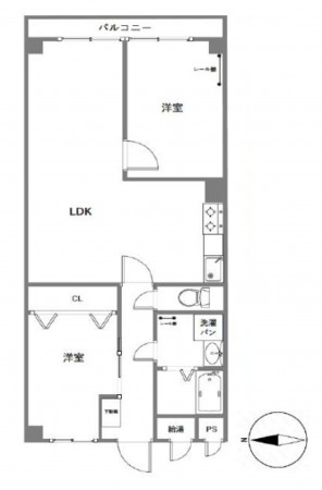
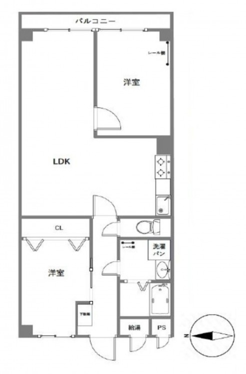
67.50m²
2LDK
☆令和7年10月リフォーム完成
☆3WAYアクセス可能で通勤・お出かけ便利
☆周辺にはコンビニやスーパーなど多数あり
【周辺環境】
◆大阪市立聖賢小学校まで徒歩6分(約450m)
◆大阪市立蒲生中学校まで徒歩11分(約830m)
◆業務用食品館 城東中央店まで徒歩2分(約160m)
◆ローソン城東蒲生2丁目店まで徒歩3分(約180m)
◆セブンイレブン大阪蒲生3丁目店まで徒歩4分(約270m)
◆ファミリーマート 城東中央2丁目店まで徒歩4分(約310m)
◆パントリー蒲生店まで徒歩4分(約320m)
◆マックスバリュー京橋店 しまむら京橋店まで徒歩6分(約420m)
◆ライフ京橋店まで徒歩6分(約450m)
◆エディオン京橋店まで徒歩6分(約450m)
物件概要
- 交通
-
大阪メトロ今里筋線 蒲生四丁目駅 まで 徒歩7分
大阪メトロ長堀鶴見緑地線 蒲生四丁目駅 まで 徒歩7分
京阪本線 野江駅 まで 徒歩11分
- 専有面積
- 壁芯 67.50㎡
- バルコニー面積
- 5.40㎡
- バルコニー方向
- 東
- 所在階/階数
- 6階/11階
- 築年数
-
1974年
(昭和49)
3月
築51年 - 建ぺい率
- 容積率
- 土地権利
- 所有権
- 構造および階数
- SRC(鉄骨鉄筋コンクリート) 造 地上11階建
- 総戸数
- 小学校区
- 聖賢 ( 450m )
- 中学校区
- 蒲生 ( 830m )
- 地目
- 現況
- 空
- 引渡時期
- 即時
- 駐車場
- 空無
- 駐車場月額
- 管理形態
- 全部委託
- 管理方式
- 管理人日勤
- 管理会社
- 管理費
- 9,480円
- 修繕積立費
- 8,400円
- 上水道
- 公共
- 下水道
- 公共
- ガス
- 都市ガス
- 都市計画
- 用途地域
- 商業
- 設備・条件
- システムキッチン、食器洗浄乾燥機、シャンプードレッサー、洗浄便座、モニタ付インターホン、エレベーター
- 備考
- 取引態様
- 仲介

